Warning: SessionHandler::read(): open(/var/www/100500kotlov.ru/data/mod-tmp/sess_18c0368dbce2f035b75870590296e6e3, O_RDWR) failed: No space left on device (28) in /var/www/100500kotlov.ru/data/www/kotlom.ru/vendor/symfony/http-foundation/Session/Storage/Proxy/SessionHandlerProxy.php on line 59
Топка ТШПМ-1,5 купить в Хабаровске | Цена от 305000 рублей
В наличии на складе

Топка ТШПМ-1,5

Цена
305 000 р.
Доставляем Топки котлов
в г. Хабаровск

Кратко о характеристиках

МаркаТШПМ-1,5
Вид топкиТопка механическая с шурующей планкой
ТопливоБурый уголь
ТипТШПМ

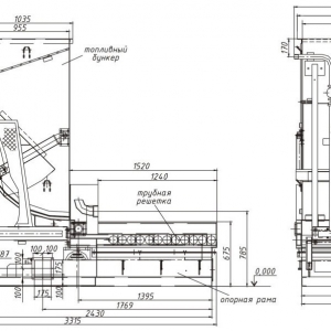
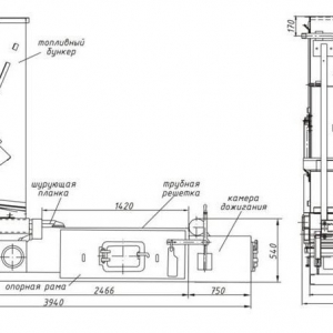
Топка типа ТШПМ-1,5 в Хабаровске – это механическое устройство для обеспечения теплоснабжения, оснащенное шурующей планкой. Она равномерно разбрасывает продукты горения по решетке, таким образом, происходит процесс полноценного сгорания топлива.

Характеристики

Содержание мелочи (0-6 мм), не более, %
50
Максимальный размер куска, мм
100
Ширина колосниковой решетки, мм
860
Масса, кг
1400
Марка
ТШПМ-1,5
Вид топки
Топка механическая с шурующей планкой
Топливо
Бурый уголь, Каменный уголь, Антрацит
Диапазон изменения нагрузки, %
40-100
Коэффициент избытка воздуха за топкой, не более
1,4
Активная площадь колосниковой решетки, м²
1,31
Габаритные размеры (ДхШ), мм
4500х860х2530
Тип
ТШПМ
Цена, руб.
305000
Топка котла КВм
Тип топки Механическая
Комплект
Топка ТШПМ-1,5
Топка ТШПМ-1,5
1 штука
Привод ПТБ-1200
Привод ПТБ-1200
1 штука
Редуктор РТ-3000
Редуктор РТ-3000
1 штука
Как все происходит
на видео
Смотреть видео галерею
Возникли
вопросы?
Закажите консультацию
Или позвоните
8 (800) 551-45-60
Ответим на вопросы
Расскажем о скидках
Презентуем товар
Поможем выбрать
Доставляем Топки котлов
в г. Хабаровск

Устройство и принцип работы

Устройство механической топки ТШПМ-1,5 состоит из статичной колосниковой решетки, шурующей планки, бункера и вентилятора. Отличительная особенность топики – это шурующая планка, благодаря которой осуществляется равномерное распределение крупных частиц топлива. Эти процессы стимулируют полноценное сгорание топлива. Так же, движением планки происходит сбрасывание отходных частиц.

Особенности и преимущества

  • Полный расход горючего;
  • Автоматизация котельной;
  • Большой процент КПД;
  • Быстрый монтаж;
  • Удобство использования.

Эксплуатация и техническое обслуживание

Процесс монтажа топливного оборудования типа ТШПМ-1,5 должны производиться исключительно профессиональными специалистами. При установке конструкции необходимо руководствоваться требованиями, прописанными в «Правилах устройства и безопасной эксплуатации паровых и водогрейных котлов».

Следите за новостями в социальных сетях
Наши цифры
скажут за нас все
10
Срок эксплуатации оборудования – более десяти лет
20
Двадцать лет
трудимся для вас
10
Меньше десяти дней
на изготовление товара
500
Более пятисот
точек поставки
Вы смотрели